Realisiert Engagement Forschung & Lehre Wettbewerb

SCHWEIZERGASSE
Umbau und Aufstockung Basel
Realisiert, 2018

SCHWEIZERGASSE
Umbau und Aufstockung Basel
Realisiert, 2018

Fas­sade hof­sei­tig

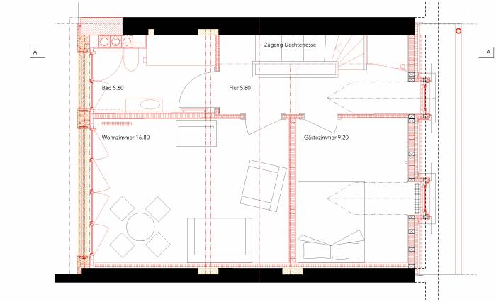
Dach­ter­rasse

Fas­sade hof­sei­tig

Dach­ter­rasse

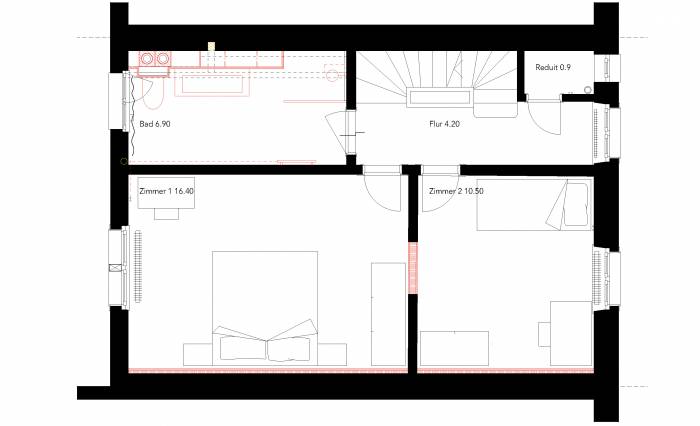
Ein von zahl­rei­chen Ein­grif­fen ver­schie­de­ner Jahr­zehnte gepräg­tes Rei­hen­ein­fa­mi­li­en­haus aus dem Jahr 1873 wird saniert und den heu­ti­gen Ansprü­chen gemäss umge­stal­tet. Der – in diesem Fall – sehr enge Basler Grund­riss“ wird im Erd­ge­schoss zuguns­ten einer grös­se­ren Küche und einem geräu­mi­ge­ren Entrée ver­än­dert. Zudem gibt es neu einen gross­zü­gi­gen Wohn­raum, anstelle von zwei klei­ne­ren Zim­mern. Das Dach­ge­schoss wird auf der Hof­seite ange­ho­ben und aus­ge­baut. Das Trep­pen­haus wird nach oben erwei­tert und erschliesst die neue Dach­ter­rasse mit süd­west­li­cher Aus­rich­tung, welche den schon früh am Abend im Schat­ten lie­gen­den Garten als Aus­sen­raum ergänzt. Die Fas­sade aus Holz zeigt die leichte Kon­struk­tion des Auf­baus und setzt einen eigen­stän­di­gen Akzent neben dem Bestehen­den.

Mitarbeiter AFA: Carolin Klumpe, Sarah Barth, Nikolas Klumpe

Statik: Burkhard Schnabel, Büro für Bau + Holz
Bauphysik: Gartenmann Engineering AG
Fotografie: Johannes Schäfer

Ein von zahl­rei­chen Ein­grif­fen ver­schie­de­ner Jahr­zehnte gepräg­tes Rei­hen­ein­fa­mi­li­en­haus aus dem Jahr 1873 wird saniert und den heu­ti­gen Ansprü­chen gemäss umge­stal­tet. Der – in diesem Fall – sehr enge Basler Grund­riss“ wird im Erd­ge­schoss zuguns­ten einer grös­se­ren Küche und einem geräu­mi­ge­ren Entrée ver­än­dert. Zudem gibt es neu einen gross­zü­gi­gen Wohn­raum, anstelle von zwei klei­ne­ren Zim­mern. Das Dach­ge­schoss wird auf der Hof­seite ange­ho­ben und aus­ge­baut. Das Trep­pen­haus wird nach oben erwei­tert und erschliesst die neue Dach­ter­rasse mit süd­west­li­cher Aus­rich­tung, welche den schon früh am Abend im Schat­ten lie­gen­den Garten als Aus­sen­raum ergänzt. Die Fas­sade aus Holz zeigt die leichte Kon­struk­tion des Auf­baus und setzt einen eigen­stän­di­gen Akzent neben dem Bestehen­den.

Mitarbeiter AFA: Carolin Klumpe, Sarah Barth, Nikolas Klumpe
:
Statik: Burkhard Schnabel, Büro für Bau + Holz
Bauphysik: Gartenmann Engineering AG
Fotografie: Johannes Schäfer

Erd­ge­schoss

Ober­ge­schoss

Dach­ge­schoss

Schnitt

Flur 2.OG

Flur 2.OG

Treppe auf Dach­ter­rasse

Wohn­zim­mer 2.OG

Lampe Wohn­zim­mer 2.OG

Dach­aus­stieg

Küche Erd­ge­schoss

Abbruch Basler Wand

Auf­sto­ckung 2.Obergeschoss

Aus­bes­se­rung Gaube