Realisiert Engagement Forschung & Lehre Wettbewerb

PAPAGENO UND PAPAGENA
Wohnungsbau Bern
Wettbewerb, 2017

PAPAGENO UND PAPAGENA
Wohnungsbau Bern
Wettbewerb, 2017

Aus­sen­an­sicht

Innen­raum

Aus­sen­an­sicht

Innen­raum

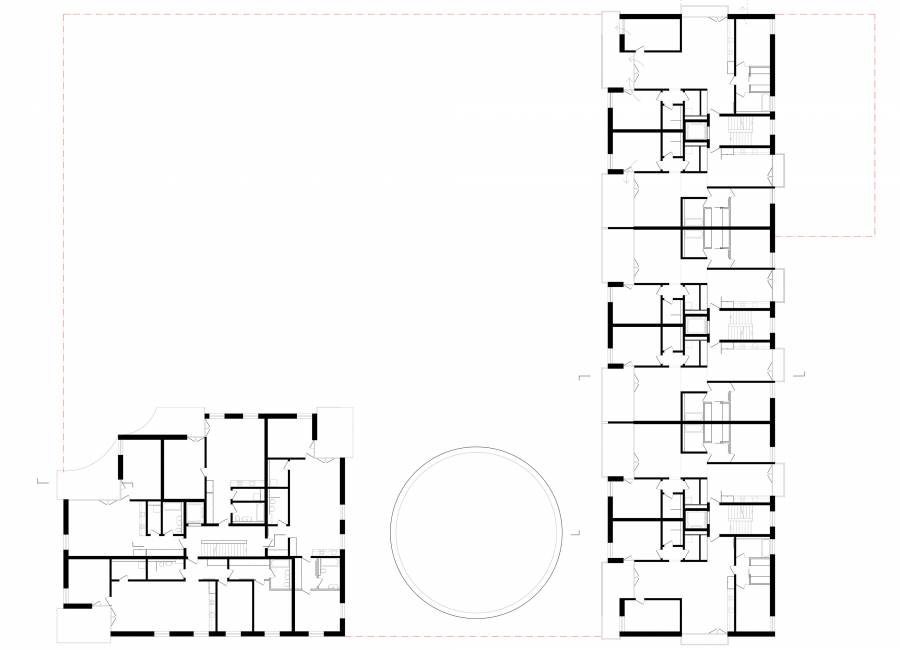
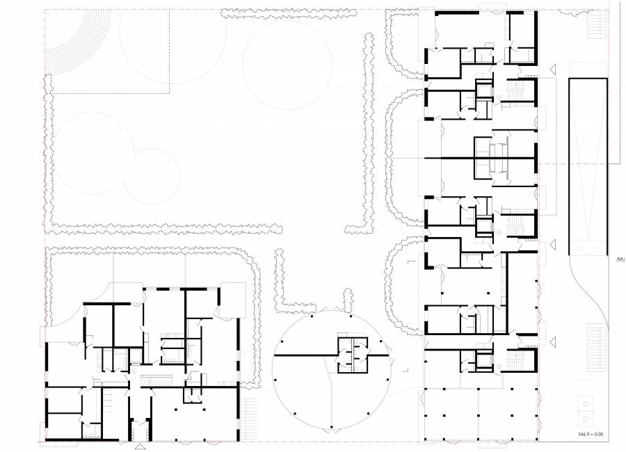
Das Bau­feld 1 in Bern Brün­nen wird als letz­ter Teil des Neu­bau­quar­tiers west­lich von Bern geplant. Die hete­ro­gene Bebau­ung im Quar­tier, der Lärm der nahen Auto­bahn und die schöne Aus­sicht prägen den Ent­wurf.

Der Ent­wurf umfasst ein läng­li­ches und ein punkt­för­mi­ges Gebäude. Alle Wohn­räume mit den ihnen zuge­hö­ri­gen Log­gien ori­en­tie­ren sich zur Aus­sicht und nehmen zugleich auf den hohen Geräusch­pe­gel der Umge­bung Rück­sicht. Das Gebäu­de­paar öffnet einen Zwi­schen­raum und rahmt den gemein­schaft­li­chen Garten.

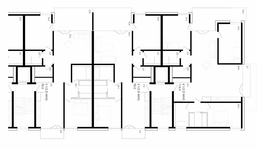
Wäh­rend das Punkt­haus als kom­pak­ter Vier­spän­ner aus­ge­bil­det ist, glie­dert sich das lange Volu­men in drei Zwei­spän­ner. Alle Woh­nun­gen werden über einen Ein­gangs­be­reich mit Gar­de­robe betre­ten. Von dort aus gelangt man in das Herz der Woh­nun­gen: Ein zwei­sei­tig aus­ge­rich­te­ter Dop­pel­raum aus Wohn­zim­mer mit Loggia und gross­zü­gi­ger Küche mit Ess­platz, dia­go­nal ver­bun­den und mit flies­sen­dem Über­gang. Die Grösse und Dis­po­si­tion der Zimmer erlaubt eine fle­xi­ble Ein­rich­tung der Woh­nun­gen.

Mitarbeiter AFA: Carolin Klumpe, Sarah Barth, Nikolas Klumpe

Schallschutz: Gartenmann Engineering AG

Das Bau­feld 1 in Bern Brün­nen wird als letz­ter Teil des Neu­bau­quar­tiers west­lich von Bern geplant. Die hete­ro­gene Bebau­ung im Quar­tier, der Lärm der nahen Auto­bahn und die schöne Aus­sicht prägen den Ent­wurf.

Der Ent­wurf umfasst ein läng­li­ches und ein punkt­för­mi­ges Gebäude. Alle Wohn­räume mit den ihnen zuge­hö­ri­gen Log­gien ori­en­tie­ren sich zur Aus­sicht und nehmen zugleich auf den hohen Geräusch­pe­gel der Umge­bung Rück­sicht. Das Gebäu­de­paar öffnet einen Zwi­schen­raum und rahmt den gemein­schaft­li­chen Garten.

Wäh­rend das Punkt­haus als kom­pak­ter Vier­spän­ner aus­ge­bil­det ist, glie­dert sich das lange Volu­men in drei Zwei­spän­ner. Alle Woh­nun­gen werden über einen Ein­gangs­be­reich mit Gar­de­robe betre­ten. Von dort aus gelangt man in das Herz der Woh­nun­gen: Ein zwei­sei­tig aus­ge­rich­te­ter Dop­pel­raum aus Wohn­zim­mer mit Loggia und gross­zü­gi­ger Küche mit Ess­platz, dia­go­nal ver­bun­den und mit flies­sen­dem Über­gang. Die Grösse und Dis­po­si­tion der Zimmer erlaubt eine fle­xi­ble Ein­rich­tung der Woh­nun­gen.

Mitarbeiter AFA: Carolin Klumpe, Sarah Barth, Nikolas Klumpe
:
Schallschutz: Gartenmann Engineering AG

Erd­ge­schoss

Regel­ge­schoss

Regel­ge­schoss Punkt­haus

Regel­ge­schoss Zeile

Ansicht West

Detail­schnitt